This article investigates how Villa affected by the Bauhaus school and various alterations in villa architecture, analyzing five villas in this context including Villa Ostermann, Haus Am Horn, Sommerfeld House, Villa Lampert and Haus Römer.
Mahshid Motamed
Villa, as a legacy of the Roman Empire and a sign of financial welfare, has taken different forms according to different historical and geographical contexts. The common factor among these buildings is the matter of function as a “leisurely architecture”. The flexibility of villa designing should be analyzed due to the paradigm shifts in technology, social and economic revolutions, and aesthetics.
During the ancient Romans’ era, Villa was formed by the elite class and located in the vicinity of their farms and properties which were used quarterly/seasonally and economically managed independently; they produced oil and wine and agriculture was the main source of their incomes. Achievements of the villa in this system led to the tax decreasing in German/Gaul regions. After the Roman era, the villa applied as a headquarter of the feudal system which partly changed the main concept to some extent. In this period, Villa became a residency for German veterans and tribes who were allied with them; for example, villas in a district between Cologne and Aachen. The locations of these buildings were situated by aqueducts and main roads and sometimes utilized as grain depots and food suppliers for border castles.
By the appearance of the Renaissance in Italy, Villa was recognized as an architectural manifestation, symbol of the ruling families, and (for the first time in history) embodiment of architects’ thoughts. Throughout the 18th and 19th centuries, the term “Villa” was used for separated houses and specific forms such as Kurvillen[1] in 17th and Bädervillen[2] that reminds public bathing, promoted from the end of 18th century and particularly in the late of 19th. Next trend was the expression of rather minimalist mansions in the Bauhaus style since the 1920s, that also continues until today. The parallel process to the villa-building was Bauhaus school and its’ design ideas; in this essay, the main discussion is about the impact of this stream of thoughts on the modality of Villa (Griffith, 2014 ).
Villa structure in Germany: Pre-Modern Era
Due to the variety of structures, decorations, and materials used in pre-modern German villas, four criteria were used to define the villa:
I) Building construction, which is typically part of an agricultural system; II) instead of cluster housing, the single building covers all spaces; III) some academic texts mentioned that it is made of stone, and IV) the building has not been used permanently but for recreation.
A myth that persists about Roman villas located in western Europe is that they are all large Italian-style, axial-planned villae which are characterized by peristyle courtyard gardens, fountains, copious mosaics and wall paintings. In fact, although there are such grand villae in Roman Gaul/Germany, the vast majority were "small and of very modest character." (Wells, The Barbarians Speak: How the Conquered Peoples Shaped Roman Europe, 2001). In Raetia province in southern Germany there are virtually no examples of these large axial villae.
In Germany, each villa is unique; however, there are two basic structural designs among the generally small villae: firstly, a relatively large central room with adjoining rooms off it and secondly, a hall with a long corridor linking other sections of the building (Wells, The Barbarians Speak: How the Conquered Peoples Shaped Roman Europe, 2001).
Furthermore, there are regional differences in design, size and numbers of villae. Proof of considerable regional variation in the villae landscape can be gained in comparing the southern Bavarian rural region's initial lack of propensity towards 'Romanitas' construction techniques with the rural villae landscape around Trier on the Moselle River which had a dense villae distribution with far more examples of the grand Italian-style villae. The latter region was more dynamic and receptive to the new styles and practices. Proximity to the new urban and military centers, which manufactured and imported these new consumer goods, provided these lifestyle opportunities (Wells, Creating an Imperial Frontier: Archaeology of the Formation of Rome's Danube Borderland, 2005)

villa at Hechingen-Stein (Baden-Wurttemburg) evolved from the 1st-3rd centuries AD. Its large sanctuary with 12 independent shrines (located in the bottom left-hand corner of the painting) was an unusual and prestigious addition.
(Ref: http://www.historyguru.com.au/Blog/January-2014/Roman-Villas-in-Southern-Germany)
Villa structure in Germany: Bauhaus Era
Resort architecture dates back to constructing the first beach resort in Europe in 1793, the style evolved since the foundation of Heiligendamm and flourished especially around the year 1870, when resorts were connected to big cities via railway lines. Until today, many buildings on the German coasts are built in the style or feature distinct elements of resort architecture. The style especially received a boost with the railway lines connecting the then booming seaside resorts of Germany to European metropolitan areas in the late 19th and early 20th century. It can be a variation of several styles with new elements, including historicism and Art Nouveau, for instance. It is often characterized by two to four story buildings whose façades are often decorated with balconies, gables and verandas. In larger villas there are occasionally central avant-corps. Arched or rectangular windows predominate, occasionally flanked by half-columns or blind pilasters. Triangular gables and occasionally also curved gables or small turrets close off the ends of the attics. What is special about this form of architecture is its basic composition in classical styles that are very freely combined and which may be mixed with art nouveau ornamentation, for instance on the capitals. The most common color is white, which is why the health spas are occasionally described as "white pearls". As a result, the rare examples in color, for example, painted in Bordeaux red, olive green, beige or blue, set amongst their white counterparts, are very striking. Overall, the buildings appear rather delicate and are often built of wood with a core of stone (editor, 1993).
In 1898, the garden city movement as a method of urban planning was started containing proportionate areas of residences, industry, and agriculture. The idea was initiated by Ebenezer Howard in the United Kingdom and aims to capture the primary benefits of a countryside environment. Muthesius was one of the major architects who built Germany's first Garden City, Hellerau, a suburb of Dresden, founded in 1909. Its foundation was closely related with the activities of the Deutscher Werkbund, too. Muthesius was British Embassy Chargé d'Affaires and during his duty, he studied about English houses characters and some of their German features. Among the many employees of Muthesius was the German Socialist city planner Martin Wagner, who applied the lessons of the garden city to Berlin on a huge scale, from 1924 to about 1932. On the other hand, Richard Reimerschmidt and Peter Behrens started their architecture profession by constructing their own houses, while they were industrial designers.
The first exhibition of the artists’ colony took place in 1901 with the title “A Document of German Art” by Darmstadt Artists' Colony[3]. The exhibits were the colony's individual houses, the studios and various temporary constructions. The exhibition was opened on the 15th of May with a festival proposed by Peter Behrens and inspired interest far beyond Darmstadt's borders, but ended nonetheless with a large financial loss in October. Paul Bürck, Hans Christiansen and Patriz Huber left the colony shortly afterwards, as did Peter Behrens and Rudolf Bosselt in the following years (Roymans, 1996).
The Rise of the Bauhaus and Approaches to Villa/House Architecture
Like no other institution, the Bauhaus (which was founded in Weimar in 1919 and relocated first to Dessau in 1925; then to Berlin in 1932, where it was closed down in 1933) emblematizes 20th century German modernism. Although there is no such thing as a Bauhaus style per se, the school’s products are still regarded in the early 21 century as constituting blueprints for an alternative to the historical reality that plunged first Germany, then Europe, and finally the world, into unparalleled catastrophe. Against the backdrop formed by this historical constellation, it seemed inevitable that the Bauhaus, its protagonists and students, its designs and aims, would retain its symbolic potency in contemporary Germany, that it would continue to substantially shape this nation's identity, its self-understanding. With justice, many of those well versed in the history of the Bauhaus have criticized the inflation of the school's profile to the level of a “better Germany”. But the extraordinary ferocity of the epochal conflict between enlightened modernism and aggressive reaction that raged throughout the twentieth century, and in Germany in particular, makes any sober historical consideration of the Bauhaus virtually impossible (Siebenbrodt & Stiftung Weimar, 2009).
During its’ 14 years of working, Bauhaus was not only as an art and (later) architectural design school, but also appeared as a society to enquire the European new modernism. It was a reforming organization which was reflected the consequences in all areas. Obviously, Bauhaus focused on mass habitation, industrialization and practical experiences in this regard, but as their architectural approach defined a nouvelle and luminous lifestyle, other functions and spaces had been obscured.
Apart from influencing the Villa architecture regulations, Bauhaus had also affected it through the other kind of arts. Photography played an important role in breaking the regular architecture laws. Bauhaus style in photography had led to more minimalism in spaces and interior designing. Shooting angles drew the balconies and walls and the idea of entrance designing and visualizing were based on mathematical standards in photography. Light, shadow and color were the other factors indicated in architecture via photography and expressed unique characteristics of the environment.
Development of Villa and Components: Design Process
What do we expect from the design of a villa by Bauhaus architect? Independent plans, linear cubes, modern architecture and according to Gropius's view in Dessau, freedom in the use of the plan, a flat roof to cover the repeated terraces, and materials of Modern era used in the construction of the building. Gropius' futuristic memoirs, along with distancing himself from the Neo-classic style and converting to the international style, were other features of this design. There were some different perspectives on the Bauhaus of Gropius's time, all of which changed with more or less scientific processes. Villa displayed as a scene of the petty bourgeoisie, but expressed the designers’ manifestion freely (Tilch, 2018).
Bauhaus buildings and villas produced by their thoughts of narrow, rectangular cubes which fit together in a conservative and constructivist combination. Philip Johnson said: "Integrated design in Bauhaus did not only lead to cube-building, but also to the Barcelona Pavilion, independent walls, protruding ceilings and the extension of architectural elements in the landscape" (Curtis, 1996). Briefness and selection of flat surfaces, creating in-between place by combination of exterior and interior, and the progressive use of iron and glass in Bauhaus villas was a return to Destyle values. Here we see a combination of classic features, a sleek and regular steel frame with chrome plating, and panels polished with expensive materials to define the architectural space that leads to the "Free Plan". "We can not distinguish between a free plan and an explict building," said Mies van der Rohe. “The structure is the backbone of whole building and makes free plan possible. Without the spine, there is nothing but chaos, resulting in stressness and obsession” (Wenwen Chen, 2013).
Landscape
Designing areas around the new, minimalist-formalist buildings was not an officially taught subject at the Bauhaus. Landscape gardening or landscape architecture, the artistic study of shaping exterior spaces, was not regarded as training for a specific profession. Although there were repeated efforts to open a garden art class, the idea never made it beyond the drawing board.
Mies van der Rohe was one of the few Bauhaus architects who also conceived and planned the exterior spaces around his buildings. To implement gardens, terraces, courtyards and squares, he sought advice from experts, including the Berlin gardener and garden philosopher Karl Foerster. In the early 1930s, a circle of landscape gardeners and landscape architects gathered around Foerster, a perennial cultivator, seeking a connection between the building, the city and landscapes. Later, the married couple Hermann Mattern and Herta Hammerbacher sowed the seeds of this new modern school of gardening and landscape architecture.
They were convinced that architecture and nature could achieve a perfect harmony if they were mutually dependent on and permeated each other. Thus, instead of focusing on decorative blooms, something beautiful to behold, they tried to grasp the “inner character of the landscape”. Their nicknames “Hügel-Hermann” and “Mulden-Hertha” (“Hill Hermann” and “Hollow Hertha”) reflect how their design approach was orientated towards the existing terrain, accentuating it with mounds and excavations. These aspects of the formal language, creating spaces through recesses and mounds, the planting of hedges and walls, as well as perspective views through the terrain, were all new.
The approach was regarded as a modelling process, an art, structures designed to create a harmonious mood and “tonal melodies”. As a counterpoint to the new architectural materials, the garden design of the times used the natural materials of earth, soil, stone, water and plants. It is unclear whether that playful and moving counterpoint represents a deliberate reaction to Bauhaus formalism. Presumably, landscape design developed in parallel with the Bauhaus, since the Weimar Republic was generally a period of new beginnings and reorientation (Sickinger, 2019).
Furniture
Known for developing a distinctive, modern style built on the principle of simplicity, teachers and students from the Bauhaus school designed some of the 20th century's most iconic pieces of furniture. Bauhaus furniture was designed to be functional above all other qualities. Stripped down to their basic elements, fundamental components like tabletops or legs were typically reduced to simple geometric forms.
Bauhaus designers wanted to create aesthetically pleasing objects, but also wanted their products to be available to a mass public – the simple designs of each furniture piece made it easier to produce them efficiently. Modern industrial techniques also made certain materials more readily available, such as steel, glass, plywood and plastic. Such materials were seen as unconventional for use in furniture making at the time, but facilitated mass production and promoted the Bauhaus' spirit of practicality (Maciuika, 2005).
As the art historian Seamus Payne notes, Breur's was "the first ever chair to feature a bent-steel frame...it marked the beginning of a new era in modern furniture with a design that maintains a progressive look even today." After World War II the Italian firm Gavina began producing the chair, ensuring its longstanding influence on design history, and marketing it as the "Wassily Chair." In 1968 the American company Knoll bought out Gavina and began manufacturing the Model B3, which, as a result, can still be purchased today.
Wassily Chair by Marcel Breuer

Baby Cradle by Peter Keler

Bauhaus Chess Set by Josef Hartwig
.jpg)
MT8 Lamp by William Wagenfeld and Carl Jakob Jucker

Nesting Tables by Josef Albers
Ref: https://www.dezeen.com/2018/11/08/bauhaus-furniture-designs-chair-tables-chess-set-baby-cradle
5 Villa Examples in Bauhaus
It should be noticed that the architecture of Mies van der Rohe villas, which are very rich in theory and design, should be considered separately from other Bauhaus villas; there are various reasons for this attitude, including changes in Mies pre-Bauhaus and post-Bauhaus projects, the differences between his management and Gropius, and the function of his villa spaces (for example, the Barcelona Pavilion), which have fewer projects in terms of functionality. In fact, it was Gropius who introduced modern villas in Germany, trained students to do so, and persuaded employers to build them. Leaving aside the Mies flagship projects, only a few of villas remain from this period for analysis. Here we explore Ostermann Villa, House am Horn, Somerfield, Villa Lampert and Roemer House.
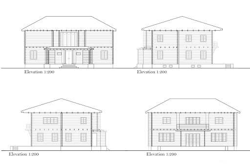
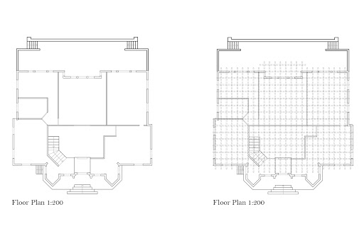
Villa Ostermann
The neo-baroque Villa Ostermann was built from 1908 to 1909 based on a design by the Berlin architect Alfred Messel. The client was Paul Ostermann von Roth, director of the Grand Ducal Collections.
The two-storey palace with a flat central projection on the street side and a heavy mansard hipped roof has a symmetrical floor plan and symmetrical facades. As with some of his Berlin buildings, Messel renounced precious materials and sculptural ornaments. The rather simple house consists of masonry with plastered facades. The strict closedness of the facade with its lines and surfaces, the few, finely developed details in the framing, profiles and latticework is only softened on the garden side by two rounded balcony bay windows with floor-to-ceiling windows. The Villa Ostermann is also reminiscent of the country houses built at the same time by the architect Paul Schultze-Naumburg.
In its hardly changed state of preservation, with its original fencing and gardens, it is a representative example of the traditionalist conception of a spacious urban villa for the period after the turn of the 19th and 20th centuries. For architectural and historical reasons, the Villa Ostermann is a cultural monument (Fries, Heiss, Langner, Lehn, & Reinhold-Postina, 1994).
Ref.: https://architekturmuseum.ub.tu-berlin.de/P/93446.php

Ref: https://de.wikipedia.org/wiki/Datei:Darmstadt-Eugen-Bracht-Weg6.jpg
Haus Am Horn
Bauhaus director Walter Gropius surprised his international guests at the opening of the Bauhaus exhibition in Weimar in 1923 with a unique work of architecture (Fiederer, 2017). What he presented was a small single-family house that had been erected overlooking the romantic setting of Johann Wolfgang von Goethe’s garden house in a slightly hilly suburban area. Yet contrary to expectations, the austere, plainly composed Haus Am Horn, as it was later named with reference to its location, did not conform to what most contempo- raries would have regarded as the ideal image of an attractive home, and certainly not of a representative villa.
It was not only in Weimar—where, in the early years of the young German republic, Elisa- beth Förster-Nietzsche was still the dominant voice, and modern architecture was largely identified with the elaborate, ornamental Jugendstil buildings designed by Henry van de Velde and accepted accordingly—that the Haus Am Horn, which had no visible roof, was generally regarded with a sense of bafflement. This modern, minimalist architectural concept met with little approval elsewhere as well, even in the metropolis of Berlin.
One of the reasons frequently cited is that the formally reductive design was not, as might have been expected, the work of architect Walter Gropius, who enjoyed an international reputation, nor that of one of his employees. The concept was based instead on ideas conceived by a painter and sculptor, the young Bauhaus instructor Georg Muche, who had moved to Weimar to assume the position of master of form for wood sculpture in 1920. Muche had already attracted attention within the context of the preliminary course, as he responded to the mysticism of the dominant Johannes Itten with his down-to-earth emphasis on sound craftsmanship, coupled nonetheless with artistic ambition. This approach gave the twenty-eight-year-old painter greater weight in the eyes of young Bauhaus students, especially after Muche had discussed his intentions regarding the dimen- sions, structure, and room configuration of a contemporary single-family house with such infectious enthusiasm (UNESCO, 2017).
His description of how a modern home for “young people” should be furnished so that they could live in a “beautiful, … pleasant, and functional” setting was also in line with the principles of the Bauhaus school, which was then in the process of developing furniture and furnishings suitable for industrial production in its workshops. Ultimately, Gropius had bowed to the expressed will of the younger members “in the spirit of democracy” and, turning to Muche, remarked that “their élan—even if it is born of delusion—is the nerve that drives our exhibition. I am willing to go along.”
The Bauhaus director acted with appropriate solidarity and assigned Adolf Meyer, his partner of many years, to serve as advisor on technical issues and matters of engineering design. Meyer and members of Gropius’s firm prepared the necessary technical drawings, including the blueprint for the petition for a building permit for the Haus Am Horn, which was made in 1923 and signed by Walter Gropius on October 3, 1923.
This technical group drawing shows the incorporation of the house into the existing topography and also includes two ground plans, four elevations, and one building sec- tion. We see the building with its partial basement containing a furnace room, a wash- ing room, and a pantry, and above it the ground floor, which is dominated by a square central living room around which the other rooms needed by a modern model family are grouped. One of the problems posed by this axially symmetrical, almost classically structured design was that of lighting in the living room located in the interior. The solution was to raise this room out of the building cube to a height of over four meters in order to provide indirect light from a band of windows facing south and west. Thus the view of the street and the garden is restricted for the most part to the adjacent hall areas and the liv- ing room, the bedrooms, and the guest room. In this way, the living room represents the ideal image of contemplative, self-centered family life.
Muche developed a modern variation on the typology of the atrium house in the ground plan. That typology had been a standard feature of European villa architecture in the Palladian style according to the ancient Roman concept of the sublime since the Renaissance. Thus this modern single-family setting was still somewhat surrounded by the architectural flair of Italy, which architect Walter Gropius was presumably prepared to accept as a tribute to Weimar classicism, especially as the reference was concealed within the building itself and masked by the functional, asymmetrically configured window bands in each building façade. This aspect probably played a secondary role, however, since Gropius, who had failed to gain approval for his own proposals for a model house, was thus able to realize an experiment that conformed entirely to his intentions with the Haus Am Horn.
The Haus Am Horn was built in accordance with similar specifications on land formerly planned for a model development, which had been under discussion since 1921 but was never realized, and for which employees of Gropius’s firm had already drafted plans for single-family row houses exhibiting a certain sensitivity to problems of standardization. Although the individualistic symmetry of Georg Muche’s design could only remain brittle and inflexible compared to the ideas presented by Walter Gropius within the context of his modular principles devoted to variability and flexibility, the Haus Am Horn was erected in accordance with the concepts of prefabrication and furnished inside with standard integrated furniture items that became a part of the house and thus helped conserve space. The fact that the Haus Am Horn was ready for occupancy after a four-month construction period is attributable to the use of standardized building materials for walls and ceilings, which could now be erected for the first time with Jurko blocks—simple standardized lightweight cinderblocks—laid in a braced configuration with standard joint widths. Thus the single-family house in Weimar represents the earliest phase in the industrialization of building that Gropius developed in a more advanced form in the Törten housing estate in Dessau beginning in 1926. In this sense, the Haus Am Horn was indeed a model house, a pragmatic experiment in mass housing construction that was given additional brilliance and elegance by furnishings produced by the various Bauhaus workshops—an outstanding example ofthe principle of “Art and technology—a new unity” (Anke Blümm, 2019).




Sommerfeld House
Sommerfeld (1886–1964) was typical of the men who supported the Weimar Republic’s privatized cultural infrastructure and the modern architecture in which it was typically housed. Although he declined to build the commercial center Gropius also designed for him in 1920, he commissioned a four-family house for his staff from the firm as well as his own villa. He donated the money with which the Haus Am Horn was constructed in Weimar in 1923 and with which Gropius in 1925 established Bauhaus GmbH to produce products designed at the school, and he was involved in the development in the Berlin suburb of Zehlendorf of Onkel Toms Hütte, a housing estate designed in part by Bruno Taut. His wife Renée accompanied the Gropiuses on a study tour to the United States in 1928, which he helped fund. A Jew, he left Berlin in 1933 for Palestine, where he was temporarily nearly penniless, and England, but then returned after the war to assist in the city’s rebuilding.
The Sommerfeld House provided Gropius with a convenient opportunity to engage Wright and American primitivism—by no means the same thing, even from the per- spective of Berlin—as well as contemporary German Expressionism. It also served as a place to experiment with how newer, specifically European forms of abstraction could be integrated into architecture.
The first “total work of art” that was produced under the Bauhaus director, the Sommerfeld House (1920–21), then gave good cause for disappointment. Even if its depiction on the program for the topping out ceremony recalled Feininger’s Cathedral, the result was far from the lofty plans of the Bauhaus manifesto: a building with conventional ground plan and conventional interior design, in which sculpture and painting were merely a decorative addition.
The Sommerfeld House in the Berlin suburb of Dahlem, designed in 1920 and completed the following year, remains the canonical example of the impact upon Walter Gropius of the climate of Expressionist architectural experiment in which the Bauhaus was born.
As the first building Gropius and his partner Adolf Meyer erected after Gropius became director of the new school, it contained the first hint of the possible appearance of the “single form” that he concluded in the Bauhaus manifesto of 1919 would “rise towards the heavens from the hands of a million workers as the crystalline symbol of a new and coming faith.” It dates to the period when Gropius participated in Die Gläserne Kette (The Glass Chain). This group of architects exchanged letters, often accompanied by highly fantastical drawings, like those they had exhibited at the Ausstellung für unbekannte Architekten (Exhibition for Unknown Architects), organized by the Arbeitsrat für Kunst, of which Gropius was a founding member, in Berlin in 1919. The exhibit marked the crest of the wave of German Expressionist architecture; its association with the Arbeitsrat, a workers’ council for artists established in the immediate aftermath of the November Rev- olution, ensured the association of its typically crystalline forms with left-wing politics. The challenges for the architects who dabbled in Expressionism included how to imbue actual buildings with the spirit of their extremely imaginative drawings and how to build at all in a climate of economic scarcity. The graphic representation of the Sommerfeld House which accompanied the announcement of the festival for its topping out ceremony, held in December 1920, is more Expressionist than the building it describes; the artist has resorted to framing the building in inventive atmospheric effects in order to establish the appropriate tone. However, the triangular piers flanking the Expressionism and Experiment The Sommerfeld House Kathleen James-Chakraborty porch and the corrugated profile of the stained glass windows set into the bay above it make only small nods toward contemporary fashion. The choice of material, unusual for the Berlin suburbs, was as much a matter of necessity as aesthetics. The client Adolf Som- merfeld, who was involved in both the lumber and the construction business, supplied the material. “Wood,” Gropius declared in 1920, “is the material of the present.”
The Sommerfeld House, which was destroyed in World War II, was neither a radical departure from Gropius’s earlier work nor, as the comfortable if not necessarily luxurious villa of a successful industrialist, the fulfillment of a socialist dream. Like Gropius and Meyer’s administration building for the model factory at the Werkbund Exhibition held in Cologne in 1914, the house was infused with admiration for Frank Lloyd Wright, whose Wasmuth portfolio the architects frequently consulted while designing it. Its Prairie Style horizontality is considerably exaggerated in the classic photograph, taken from a very low angle from which the height of the roof is imperceptible. Instead the image emphasizes the overhangs of the porch roof, the first floor (supported on projecting beams), and espe- cially the roof. While Wright himself seldom built them, timber houses were clearly recog- nized in Berlin as specifically American. An earlier example, Alfred Messel’s villa in the suburb of Wannsee for Ferdinand Springer of 1901, was closely modeled on the Shingle Style work of an earlier generation of innovative American architects, most notably Henry Hobson Richardson. For Gropius, whose prewar factories had been infused by an admira- tion for the primitivism of American industrial architecture, the log cabin was an appro- priate point of departure for a new German architecture, one that returned to essentials without quoting outmoded historical sources.
Two further aspects of the house are intertwined with his aspirations for the Bauhaus. Although the commission was entrusted to his private architectural firm, the Sommer- feld House became the first laboratory for the integration of arts and crafts posited in the Bauhaus manifesto. Here talented artists trained as craftsmen, thus gaining the “base in handicrafts” “essential to every artist,” in which Gropius had declared that “the original source of creativity lies.” Dörte Helm and Marcel Breuer designed furnishings, while Joost Schmidt contributed decorative paneling to the front doors and the stair hall, and Josef Albers designed the stained glass windows that filled the bay over the front door. In these last two cases, abstract ornament clearly influenced by Theo van Doesburg’s pres- ence in Weimar as well as Johannes Itten’s preliminary course filled carefully delineated spaces. De Stijl and Constructivism were beginning by this time to challenge Expression- ism as the dominant aesthetic at the school, although the reverence for the machine that would be introduced in 1923 is still entirely absent in these purely geometrical exercises. Often ignored in discussions of the Bauhaus is the degree to which Gropius intended private patronage to help support his experimental school.





Ref: https://en.wikiarquitectura.com/building/sommerfeld-house/
Villa Lampert
In 1929 the lawyer Lampert decided to build a house in the new, recently emerging architectural style, the Bauhaus style. He broke with traditional architectural traditions. Because it was limited to the functional and because it was simply brightly plastered, it was very unusual for Neustadt's building world (Rübenberge, 2010).
The house for Mr. Lampert was located on Lindenstrasse, roughly in the current area of the entrance to the Kreissparkassen parking lot from Herzog-Erich-Allee. Part of the remaining green space belonged to the Lampert garden.
The design documents identify tow different architects: H. Wacker, architect, came from Hanover. Nothing can be found about his work. Another architectural hallmark is “Anders Thomsen Rasch, Architect D.W.B. Hanover, Ifflandstrasse 4 ″. It is conceivable that the architect and interior designer worked together here.
The floor area of the house was about 160 m2. On the ground floor was the large living room of about 35 m2, equipped with a modern fireplace. There was a master's room, a winter garden, and a "sideboard" between the dining room and the kitchen. The vestibule and hall were arranged in such a way that the internal stairs to the upper floor were not accessible to strangers. A spacious terrace was in front of the dining room and winter garden. The upper floor had plenty of space for bedrooms, children's and guest rooms, and the bathroom and dressing room formed a generous unit.
Above that was an attic floor, which at least provided accommodation for several domestic workers. The relatively small windows under the roof were due to the architecture. A spacious garage hall and the heating system were housed in the basement and could be reached from the path on the north side of the property that opened up the Scheunenviertel. The roof was sloping flat. In this way, the rainwater was drained off without any problems, better than with a pure flat roof. The roof was not visible from below and the impression of a cubic structure from the outside was retained.
The construction was carried out by the Sievers construction business, which still exists today. Unfortunately, further documents and plans for the Lampert house can no longer be found there.
After the Second World War, the house, like many other beautiful villas in Neustadt, was confiscated by the English occupation and housed various British institutions for several years. After the British moved out, the house was sold and Neustadt's police station was housed here.
The villa was only granted a short life of about 30 years: it was demolished for the construction of Herzog-Erich-Allee and the redesign of the intersection with Lindenstrasse and Schäfergasse. Part of the garden with the tall trees is still preserved and reminds of it.


Ref: https://www.ruebenberge.de/kunst-kultur-soziales/bauhaus-villa-lampert-architektur.html
Haus Römer
Like a villa ship anchored in the landscape, the two-tone house, made of blue-fired clinker bricks and white fine plaster, lies on a plinth-like platform in the middle of an old park plot. Especially with their southern degree: the round wall with the curved window pane, the cantilevered roof terrace slab with metal railing and the wide-span roof slab over the open sun deck the architectural sculpture, completely exposed on three sides, on maritime motifs, here: the stern of a ship (Schneider, 2014).


Ref: http://www.karl-schneider-archiv.de/roemer.html
Conclusion
Before Bauhaus, villa had not found an important place in architecture and modern architecture, and after being defined as a place for the crystallization of the architectural manifesto, it was considered as a separate topic in architecture. Prior to the Bauhaus, the villa was the epicenter of local feudalism in Europe, and after the Bauhaus it became an expression of the architect's attitude in combining industry and technology; pure Roman and classical phenomenon in a metamorphosis in Bauhaus becomes the hallmark of modern architecture. During its fourteen years of existence, Bauhaus emerged not only as an art school, designed (and with a slight delay) in the field of architecture, but also as a forum in which European modernism was tested.
Bauhaus villas with their flat, unadorned surfaces, creation of intermediate space by combining exterior and interior space, and the progressive use of iron and glass, was a return to Destyle values, achieved new minimal forms while serving as a "home", also considered the subject of "Leisure". Taking advantage of artisans, the interior furniture added new decorations for the dynamism of the space, and it was designed without the usual historical references. Combining the structure with the surrounding landscape also created a new way of designing and defining open space, glass envelopes and bringing the exterior into the interior. In the diagrams below you can see the effects of different disciplines in Bauhaus on the design and construction.
Acknowledgement
Thanks are due to H. Fazli for assistance with the research.
References
Anke Blümm, M. U. (2019, 05 14). Haus Am Horn ab 18. Mai 2019 wiedereröffnet. Retrieved from https://www.klassik-stiftung.de/service/presse/pressemitteilung/haus-am-horn-ab-18-mai-2019-wiedereroeffnet/
Curtis, W. J. (1996). Modern Architecture Since 1900. London: Phaidon Press.
editor, M. T. (1993). Michelin Green Guide: Germany (Green Tourist Guides). Michelin.
Fiederer, L. (2017, may). AD Classics: Haus am Horn / Georg Muche. Retrieved from https://www.archdaily.com/873082/ad-classics-haus-am-horn-germany-georg-muche
Fries, G., Heiss, N., Langner, W., Lehn, I., & Reinhold-Postina, E. (1994). Denkmaltopographie Bundesrepublik Deutschland. Kulturdenkmäler in Hessen / Stadt Darmstadt. Darmstadt: Vieweg .
Griffith, R. (2014 , Jan 09). Roman Villas in Germany. Retrieved from http://www.historyguru.com.au/Blog/January-2014/Roman-Villas-in-Southern-Germany
Maciuika, J. V. (2005). Before the Bauhaus : architecture, politics and the German state, 1890-1919. United Kingdom: Cambridge University Press.
Roymans, N. (1996). From the Sword to the Plough: Three Studies on the Earliest Romanisation of Northern Gaul. Netherlands: Amsterdam University Press.
Rübenberge, N. a. (2010). Bauhaus- Villa nach Gropius: Villa Lampert. Retrieved from https://www.ruebenberge.de/kunst-kultur-soziales/bauhaus-villa-lampert-architektur.html
Schneider, K. (2014, jan). Haus Römer; Hamburg-Othmarschen. Retrieved from http://www.karl-schneider-archiv.de/roemer.html
Sickinger, D. (2019, 10 07). The Bauhaus Perspective on Green Spaces . Retrieved from https://www.grandtourofmodernism.com/magazine/the-bauhaus/magazine-bauhaus100/the-bauhaus-perspective-on-green-spaces/
Siebenbrodt, M., & Stiftung Weimar, K. (2009). Bauhaus - a Conceptual Model: Occasion: Ninetieth Anniversary of the Bauhaus. Germany: Distributed Art Pub Incorporated.
Tilch, A. (2018). Bauhaus Architecture 1919-1933. Germany: Prestel.
UNESCO. (2017). Bauhaus and its Sites in Weimar, Dessau and Bernau. Retrieved from https://whc.unesco.org/en/list/729
Wells, P. S. (2001). The Barbarians Speak: How the Conquered Peoples Shaped Roman Europe. Princeton University Press.
Wells, P. S. (2005). Creating an Imperial Frontier: Archaeology of the Formation of Rome's Danube Borderland. Journal of Archaeological Research, 49-88.
Wenwen Chen, Z. H. (2013). The Analysis of the Influence and Inspiration of the Bauhaus on Contemporary Design and Education. Engineering, 323-328.
[1] spa villas
[2] seaside villas
[3] The Darmstadt Artists’ Colony refers both to a group of Jugendstil artists as well as to the buildings in Mathildenhöhe in Darmstadt in which these artists lived and worked. The artists were largely financed by patrons and worked together with other members of the group who ideally had concordant artistic tastes.