Chaharsoo Villa

Chaharsoo Villa

Chaharsoo Villa

Chaharsoo Villa

Chaharsoo Villa

Chaharsoo Villa

Chaharsoo Villa

Chaharsoo Villa

Chaharsoo Villa

Chaharsoo Villa

Chaharsoo Villa

Chaharsoo Villa

Chaharsoo Villa

Chaharsoo Villa

Chaharsoo Villa

Chaharsoo Villa

Chaharsoo Villa

Chaharsoo Villa

Chaharsoo Villa

Chaharsoo Villa

Chaharsoo Villa

Chaharsoo Villa

Chaharsoo Villa

Chaharsoo Villa

Chaharsoo Villa

villaaward 2021-sheet

Chaharsoo Villa

villaaward 2021-sheet

Chaharsoo Villa

Location: Pasargad, Fars Province, Iran

Material: Concrete & Glass

Design date: 2021

Architects: Mohsen Azizian, Farangis (Nazanin) Saeedi

Story:

Text provided by the architects:

This villa was designed on the site which is located in the second-degree privacy of the Pasargad Heritage area.

Second-degree privacy has some restrictions, one of which is the height of buildings. This should be less than 4.5 meters, in order to not violate the World Heritage Site privacy. To respect this restriction, the roof of the first floor is movable which goes up when it is opened and goes down when it is closed.

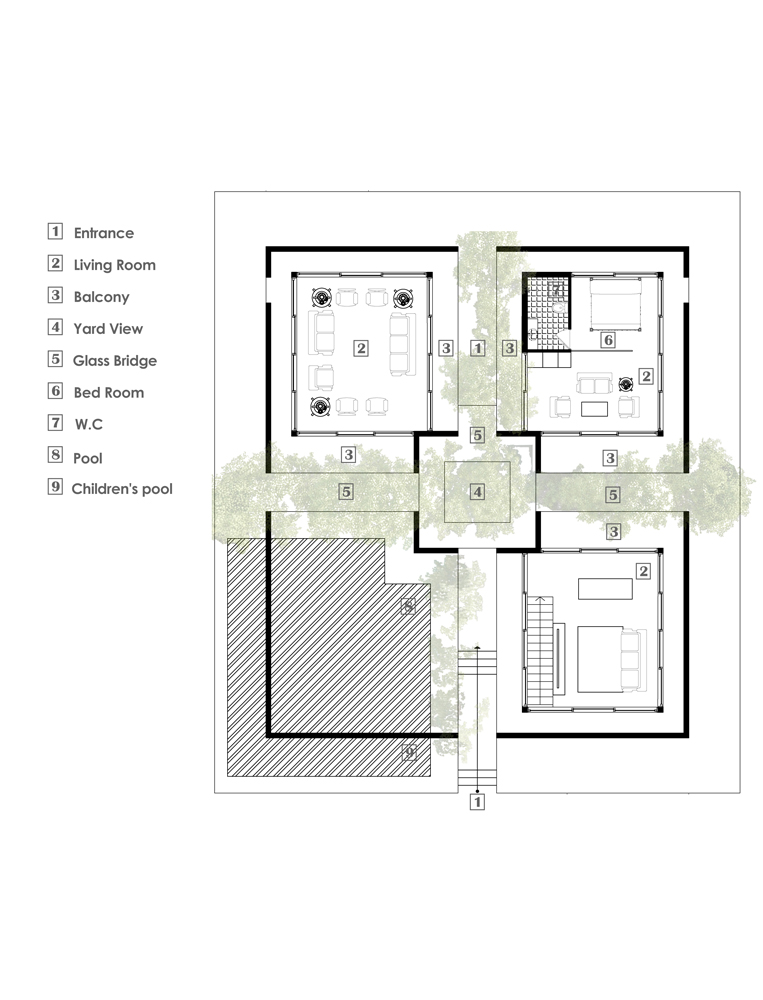
From the past till now, it is considered that the world is divided into 4 pieces. This idea can inspire a designer toward a simple order which is a cross-sample and it depicts garden designs. In addition to this, locating a palace in the center of a garden indicated centrality which symbolized that the king is the ruler of the whole world. In other words, Cyrus demonstrated simple discipline in the world by dividing a garden into 4 pieces while the ruler of this world is the king. (koomohammadi, 2009)

In order to, lower the weight of the wall around the pool we use a pattern. we got the idea from Fakhromadin which is utilized in many historical places as you can see in the diagram below.

The pool in Chaharsoo villa was designed in one of the four-divided parts. This pool is in the basement to have a great view from other parts. In addition to this, this pool can circulate fresh and humid air to other parts of the house since Pasargad is located in a warm and dry climate in Iran.

This pool is roofless to have both a view of the sky and a reflection on the pool.

As it is considered before, the pool can help the ventilation because the mesh wall performs like Windbreakers. It makes the air flow fresh and cool for the whole house.

This wall section shows the detail of how the roof is movable. It goes down to obey the rule of World Heritage Restriction.

This villa has been designed Introverted. It is inspired by historical houses which are built in past in warm and dry climates.

Moreover, there are two windows on the south and north elevation in order to have a great view of the Pasargad ancient area as you can see in the shots and the plan below.

 

Shortlisted for the Villa Magazine Award 2021 -  with participant code VA-0458