Dashti Garden Villa

Dashti Garden Villa

Dashti Garden Villa

Dashti Garden Villa

Dashti Garden Villa

Dashti Garden Villa

Dashti Garden Villa

Dashti Garden Villa

Dashti Garden Villa

Dashti Garden Villa

Dashti Garden Villa

Dashti Garden Villa

villaaward 2021 sheet

Dashti Garden Villa

villaaward 2021 sheet

Dashti Garden Villa

Location: Isfahan, Iran

Client: Mr. Ganji

Material: Concrete

Design date: 2017

Site area: 1030m2

Studio: Sheen design Studio

Design team: Ali Sherkat, Ashkan Shahdadi

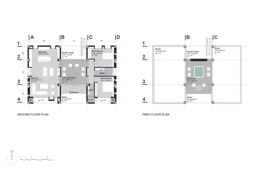
Story:

Text provided by the architects:

The Persian Bagh, beyond its appearance, is a symbol and example of the Paradise and has a mystical spirit.

The villa in the Persian Bagh is known as the mansion and the mansion has a 9-part pattern that has been maintained and repeated throughout history with different appearances.  This pattern exists in building architecture and building structure. This project is also a look at the same old pattern that has taken on a modern and contemporary form and body.

The design of the enclosure is also inspired by the Iranian Bagh and the project with the structure of the Iranian Bagh has created a new and modern look.

 

 

Selected project of 100 best works of Villa Magazine Award 2021 - with participant code VA-0358