House of Bathe

House of Bathe

House of Bathe

House of Bathe

House of Bathe

House of Bathe

House of Bathe

House of Bathe

House of Bathe

House of Bathe

Location: Gilavand, Damavand

Architect: Habibeh Madjdabadi

Material: Concrete

Design date: 2015

Built area: 600m2

Architect: Habibeh Madjdabadi

Modeling & Graphic : Sara Soltani, Mahsa Mohseni, Saman Heidari, Mohammad Bassak

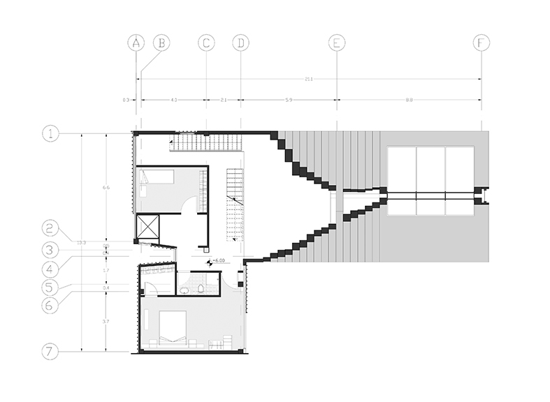
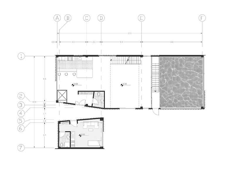
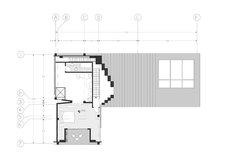
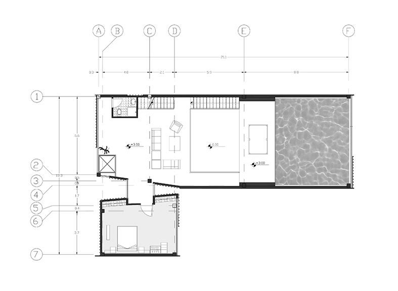
Story:

The genetic mutation house is features a ‘mutated’ rear volume.

Taking the archetypal image of a house as her jumping off point, architect Habibeh Madjdabadi has shared a concept for a home outside Tehran whose recognizable core shape has been distorted and transfigured. Called ‘the house of bathe’, the architect also refers to the project as ‘the genetic mutation house’, referring to the slow transformation of the building’s recognizable façade into its shrunken rear volume.
Today, the vocabulary of forms are exhausted’, says habibeh madjdabadi. 'I like to create forms that are iconic and exceptional at the same time; the architect’s main task is to transform ordinary to extraordinary’. Located on the eastern outskirts of Tehran, the building’s façade presents the iconic ‘house’ image of a cubic face with sloping roof. Access to the main entryway is through a right-angled aperture that extends upwards to the apex of the building, bisecting the face of the house. On the right hand side, a recessed window opens up to create the front entrance. On the left, four-storey glazing integrates the interior environment of the home with its surroundings, giving way to the pixelated textured brick that blankets the rest of the volume.
Moving to the rear of the building, the iconic shape of the house is slowly repeated and reimagined. The repetitions of concrete shapes are slowly shrunk and extended to house the rear wing and large indoor swimming pool. Generous use of glass here opens the house up, with a skylight floating above the sheltered pool and the multi-storey windows of the front repeated on the rear face. With the kitchen, hallway and pool accessible via the ground floor, bedrooms can be found on the first, second and third floor with the living room located on the first.

Related architects: