Minus Villa

Minus Villa

Minus Villa

Minus Villa

Minus Villa

Minus Villa

Minus Villa

Minus Villa

Minus Villa

Minus Villa

Minus Villa

Minus Villa

Minus Villa

Minus Villa

Minus Villa

Minus Villa

Minus Villa

Location: Damavand, Iran

Architect: Mohamad Rahimizadeh

Client: Private

Material: Concrete

Design date: 2022

Built area: 500m2

Studio: Kalbod Design Studio

Principal Architect: Mohamad Rahimizadeh

Design Team: Shaghayegh nemati, Maedeh Moalemi, Ghazaleh Eskandari, Atefeh Zolfagharifar

Visualization: Shaghayegh Nemati

Tools Used: Rhino-Lumion-Photoshop

Story:

Text provided by the architects:

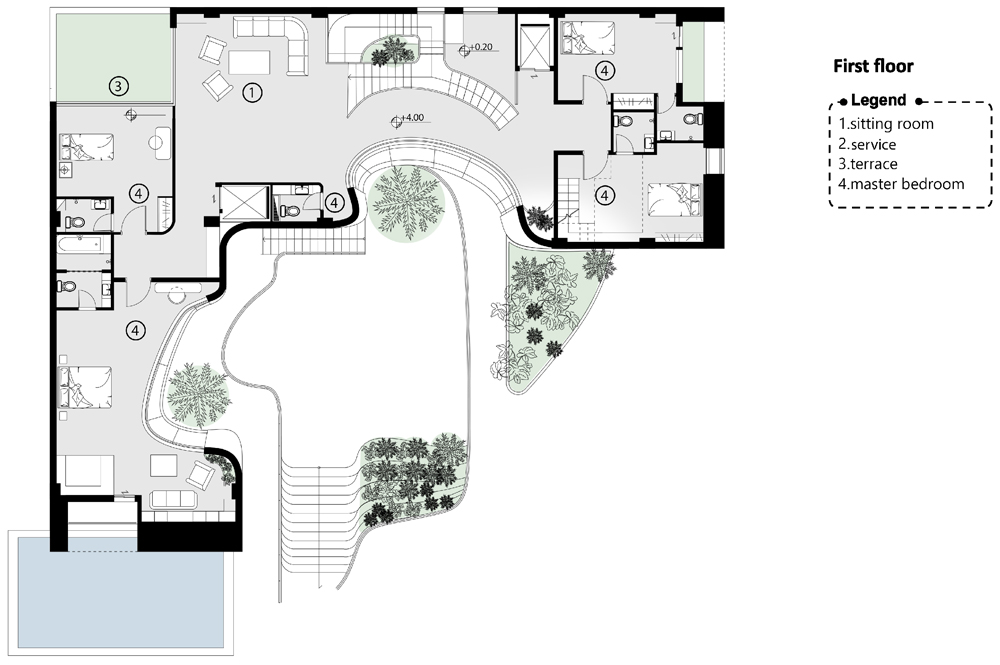
The project consists of 3 levels (2 levels on the ground and 1 level is underground) with an area about 500 square meters.
According to client requests, the design involves a suite for guest on the ground floor, 4 master bedrooms on the first floor, 2 pools (outside and inside the house)
and a roof garden.

The idea follows a contextual architecture that inspired by vernacular texture of minus area in order to preserve the two trees on the site.
In order to illuminate the basement floor, a garden has been designed to integrate the connection between outside and inside the volume in addition to lighting.
In this project, we tried to emphasize the quality of the interior by creating an introverted form while creating privacy. A triangular piece on site plan, helped us
to solve access between the landscape and building well. Although this form helped us in many cases, it has caused the challenge of connecting between levels.
To emphasize the feeling of comfort and freedom in life, a unique curved line has been created.

The consoles created in the eastern and western parts have caused more stretching of the form. Using an integrated material such as concrete, we tried to help make
the form more cohesive. In the window section, we helped to form and connect the inside and outside spaces by creating an integrated and angled curtain wall.
Landscaping and volume relationship with different parts of the project site was another issue that was considered. The trees next to the site were best preserved

Related architects: