MirRoud Villa

MirRoud Villa

MirRoud Villa

MirRoud Villa

MirRoud Villa

MirRoud Villa

MirRoud Villa

MirRoud Villa

MirRoud Villa

MirRoud Villa

MirRoud Villa

MirRoud Villa

MirRoud Villa

MirRoud Villa

villaaward 2021 sheet

MirRoud Villa

villaaward 2021 sheet

MirRoud Villa

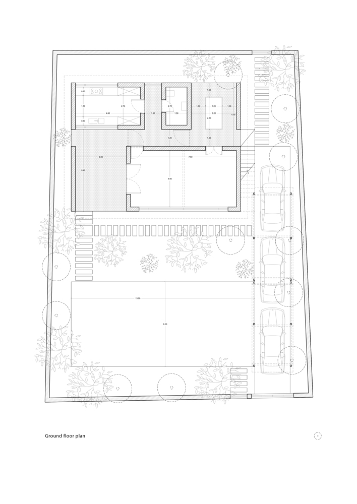
Location: Babol, Mazandaran, Iran

Client: Mahmoud Hedayati

Material: Brick and Wood

Design date: 2017

Site area: 450m2

Built area: 150m2

Studio: EOT design studio

Architects: Hanieh Alizadeh, Mahmoud Ganji

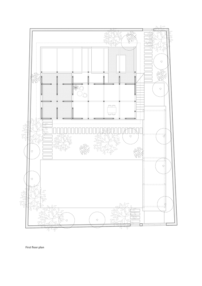
Story:

Text provided by the architects:

The Client wanted to enjoy his home village more often after retirement. He was looking for a small villa to use at weekends and for welcoming guests.

Besides, we were asked to design an alternative for a garden house, to be used as a reference for the rural Houses.

The existing ones are two kinds:

- The old pattern that needs to update.

-The newer ones that seem not sufficient enough. (Today local country garden houses are so similar to the infill blocks of cities -similar pattern, structural system and materials - with no connection between the building and its context.)

 

According to the client's request, our design was based on the garden-house design used and modified many times between 1970 to 2000.

There are some good points in this pattern while needs improvement and updates as well.

This project is a practice to deal with local architecture history as well as local people and their life style as an important context. It's an attempt to update local architectural pattern, considering the ecological and economic situation and new needs.

 

 

 Selected project of 100 best works of  Villa Magazine Award 2021 - with participant code VA-0116