Vanoush Villa Rolling Stone

Vanoush Villa Rolling Stone

Vanoush Villa Rolling Stone

Vanoush Villa Rolling Stone

Vanoush Villa Rolling Stone

Vanoush Villa Rolling Stone

Vanoush Villa Rolling Stone

Vanoush Villa Rolling Stone

Vanoush Villa Rolling Stone

Vanoush Villa Rolling Stone

Vanoush Villa Rolling Stone

Vanoush Villa Rolling Stone

Vanoush Villa Rolling Stone

Vanoush Villa Rolling Stone

Vanoush Villa Rolling Stone

Vanoush Villa Rolling Stone

Vanoush Villa Rolling Stone

Vanoush Villa Rolling Stone

Vanoush Villa Rolling Stone

villaaward 2021-sheet

Vanoush Villa Rolling Stone

villaaward 2021-sheet

Vanoush Villa Rolling Stone

Location: Vanoush, Mazandaran, Iran

Architect: Saman Sayar

Client: Private

Material: Stone

Design date: 2016

Built area: 400m2

Studio: SNP Studio

Architect: Saman Sayar

Design team: Mohammad Nikbakhsh Tehrani, Mitra Keykhosravian, Atefeh Hajiabadi, Mohammad Miri, Shima Aghaei Karim, Maral Saberian, Shadan Broumand, Pouria Alighardashi, Emad Kashfi

Text: Mahsa Masoudi

Structure: Behrouz Mirmiran

Photographer: Sohrab Shah Mohammadlou

Story:

Text provided by the architects:

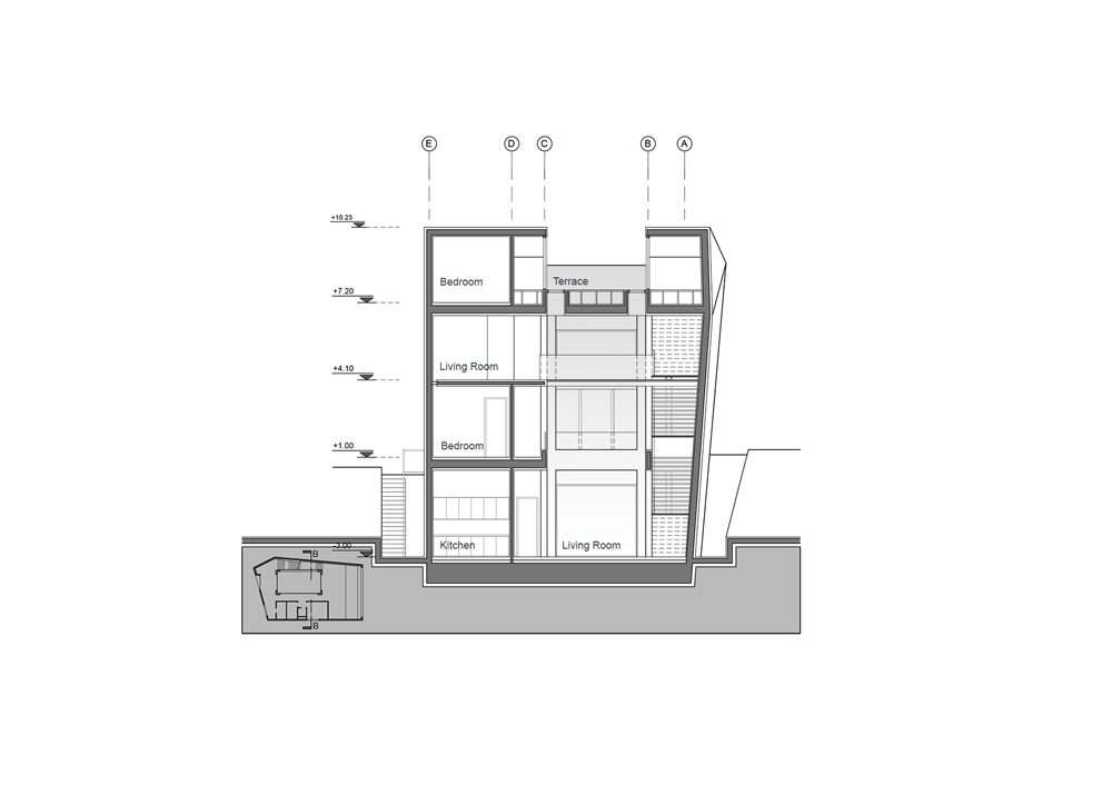
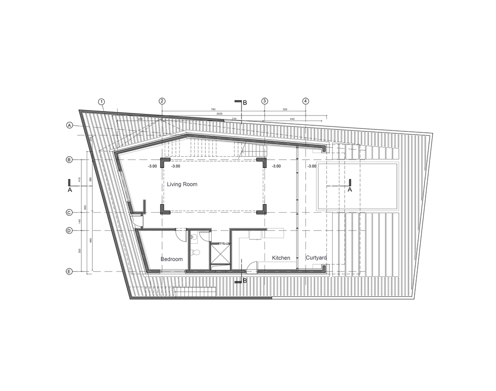
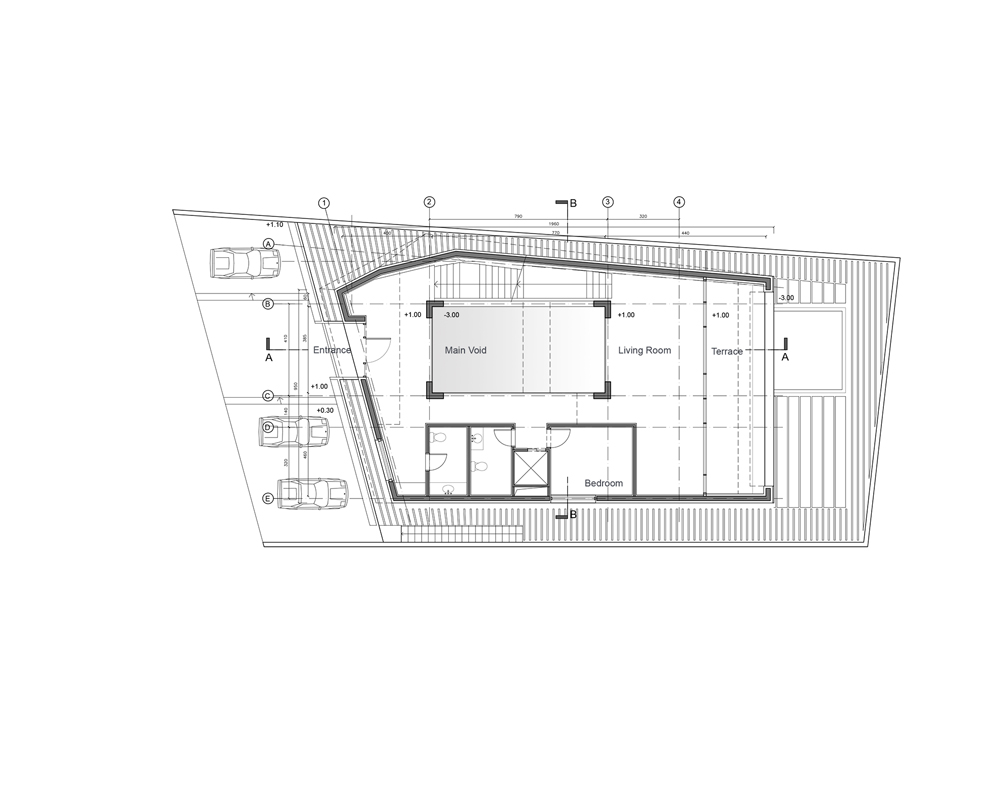
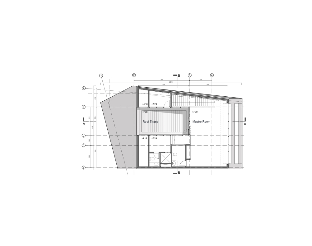
In the Northern part of the Alborz chain Mountain,the site is located in a point, where a steep slope on its south side, suddenly changes to a gentle slope on its north. Moreover, the site benefits from views of both Forest Mountain and Caspian Sea on its South and North directions, respectively. In appreciation of the outstanding location, the building is intended to have a homogeneous dialogue with its surrounding context. Villa’s form derives from stories of big stone pieces, which fall apart from the upper sides of the mountain repeatedly and roll into the skirts. Also,the Villa is covered with stain steel panels,so when it experiences corrosion due to weathering,it could dramatically express itself in harmony with the nature.

 

Shortlisted for the Villa Magazine Award 2021 - with participant code VA-0430

 

Related architects: