Villa Ab Pari

Villa Ab Pari

Villa Ab Pari

Villa Ab Pari

Villa Ab Pari

Villa Ab Pari

Villa Ab Pari

Villa Ab Pari

Villa Ab Pari

Villa Ab Pari

Villa Ab Pari

Villa Ab Pari

Villa Ab Pari

Villa Ab Pari

Villa Ab Pari

Villa Ab Pari

Villa Ab Pari

Villa Ab Pari

Villa Ab Pari

Villa Ab Pari

Villa Ab Pari

Villa Ab Pari

Villa Ab Pari

Villa Ab Pari

Location: Ab-Pari, Mazandaran, Iran

Architect: Kamran Heirati , Tallan Khosravizadeh

Client: Alireza Boluri

Material: Concrete

Design date: 2020

Site area: 950m2

Studio: Kanlan

Principal Architects: Kamran Heirati, Tallan Khosravizadeh

Design Team: Mahta Modiri, Hamidreza Naseri

Presentation: Mohamad Miri, Maryam Sharafi

Physical Model: Ali Abedzadeh

Render: Ali Kazemi

Story:

Text provided by the architects:

“Ab pari" or “House of Fog”, is a mythical name referring to a beautiful fountain in the heart of the mountains with the same name. This region located in Royan, Mazandaran is an elevated mountainous landscape with dense forests spanning all over it. During the wet season, the steep slopes are indulged in fog, which creates a delusional vision. This foggy horizon triggers a desire to walk down the silky white plateau.

 

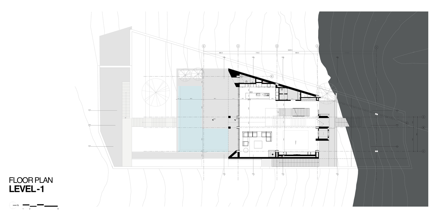
The “Ab Pari” project is located on a steep slope facing this magnificent scenery. The panoramic view lays out an array of layered images of plains, hills, and sky.

 

The “House of Fog” is also a section contributing to this scenery. The plan backs onto a bridge and extends to reach the inner vertical void, resulting in all three horizons of the project coming together.

Related architects: