Villa Barani No.01

Villa Barani No.01

Villa Barani No.01

Villa Barani No.01

Villa Barani No.01

Villa Barani No.01

Villa Barani No.01

Villa Barani No.01

Villa Barani No.01

Villa Barani No.01

Villa Barani No.01

Villa Barani No.01

Villa Barani No.01

Villa Barani No.01

Villa Barani No.01

Villa Barani No.01

Villa Barani No.01

Villa Barani No.01

Villa Barani No.01

Villa Barani No.01

Villa Barani No.01

Villa Barani No.01

Villa Barani No.01

Villa Barani No.01

Villa Barani No.01

Location: Lavasan, Tehran, Iran

Architect: Reza Daneshmir

Client: Majid Barani

Material: Stone

Design date: 2019

Completion date: 2021

Site area: 370m2

Built area: 450m2

Architects: Catherine Spiridonoff, Reza Daneshmir

Design Team: Fariba Salari, afsaneh lolayi, ghazal godarznia, Elena Bahar Lou, Behzad keramati, Amirreza shams alshoara, Homeira Asgari

Structural Advisor: Hooman Farokhi

Electrical Advisor: Amirhossein Azmayesh

Mechanical Advisor: Behrooz Noori

Construction Team: Hooman Farokhi, Masood Salamian

Story:

Text editorial:

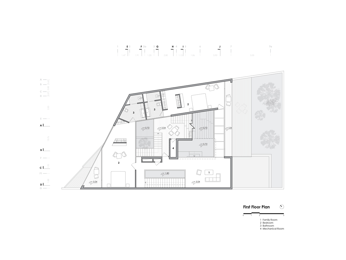
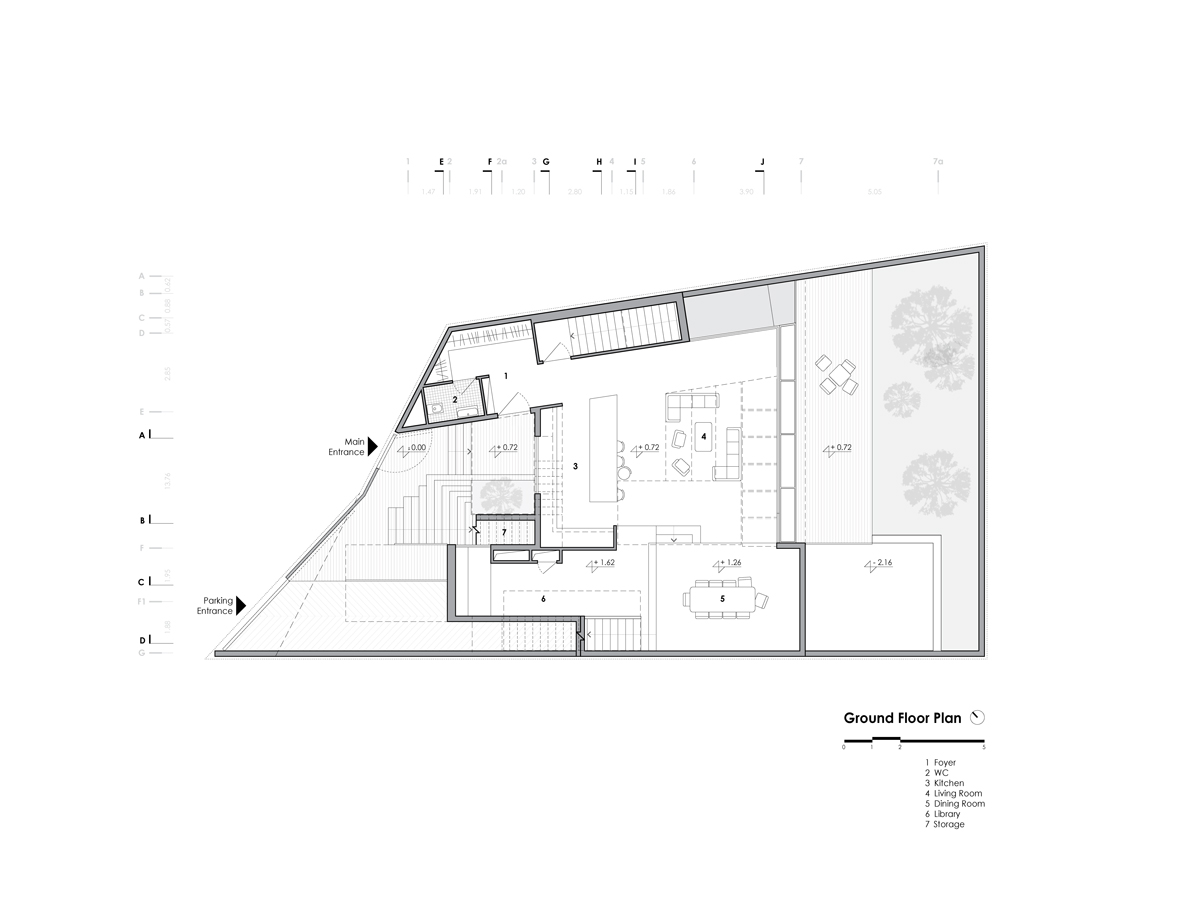
Villa Barani No.01 occupies 210 m2 of a 370 m2 plot with an approximately 450 m2 gross area in Lavasan.

Considering several aspects such as shape, mass/space, scale, proportion, texture, color, the building differentiates itself from the surroundings and fits tightly within its’ site boundaries.

The courtyard is an essential architectural element in Villa Barani’s design idea and design development, optimizing the mass density and the solar orientation. It integrates the indoor and outdoor spaces, allowing various spatial and functional configurations. 

The fluid staircase allows visitors to explore new spatial perceptions yet providing vertical/easy access to the inner project; it diagonally connects the street level to the upper levels and provides pure visual experiences.

Related architects: