Chelak Villa

Chelak Villa

Chelak Villa

Chelak Villa

Chelak Villa

Chelak Villa

Chelak Villa

Chelak Villa

Chelak Villa

Chelak Villa

Chelak Villa

Chelak Villa

Chelak Villa

موقعیت سایت

Chelak Villa

تیپولوژی خانه های ایرانی

Chelak Villa

تیپولوژی خانه های ایرانی

Chelak Villa

برنامه فیزیکی

Chelak Villa

برنامه فیزیکی در مقطع

Chelak Villa

دیاگرام حرکتی

Chelak Villa

پلان همکف

Chelak Villa

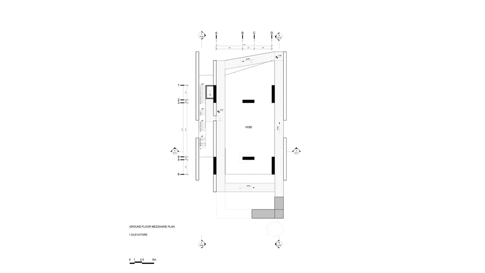
نیم طبقه پلان همکف

Chelak Villa

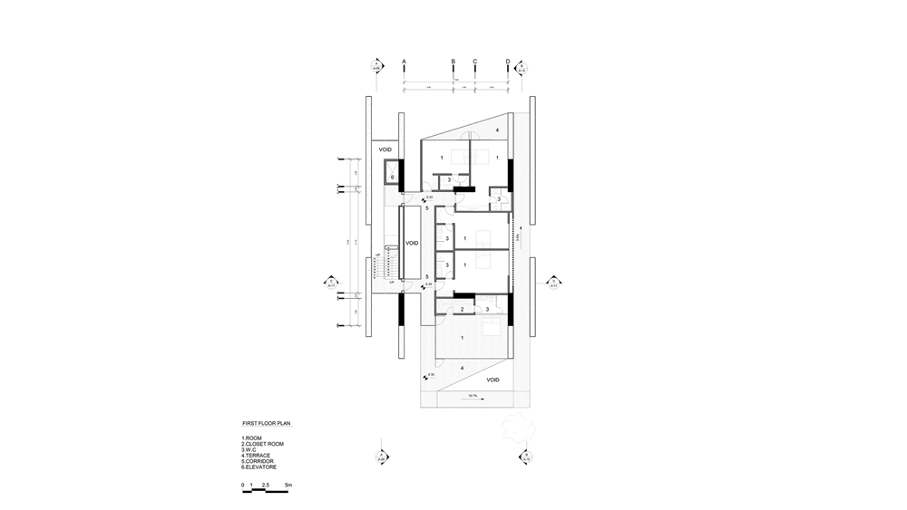
پلان طبقه اول

Chelak Villa

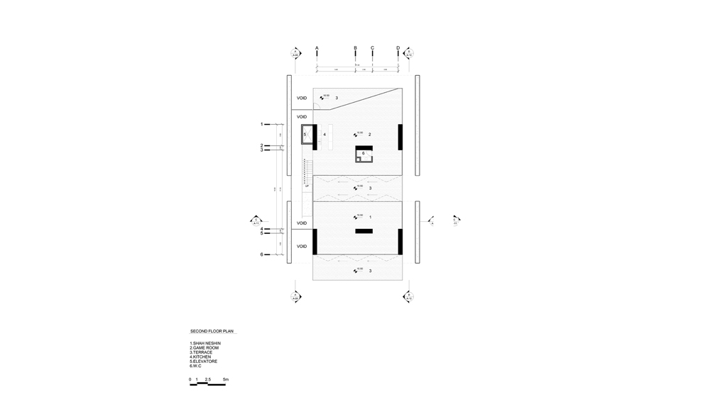
پلان طبقه دوم

Chelak Villa

مقطع A-A

Chelak Villa

مقطع B-B

Chelak Villa

Chelak Villa

مقطع C-C

Chelak Villa

نمای شرقی

Chelak Villa

نمای غربی

Chelak Villa

نمای شمالی

چلک ویلا

موقعیت: ایران، استان مازندران، نوشهر

معمار: استودیو مادو

کارفرما: آقای خسروانی

مصالح: بتن

تاریخ طراحی: ۱۳۹۸

استودیو: دفتر معماری مادو

مدیر طرح : مازیار دولت آبادی

طراح ارشد : معین نیک آیین

طراح مسئول : تینا شاه نظری

تیم طراحی : سروش کتابی

طراح سه بعدی و رندرینگ : سعید یوسفوند

ماکت: تینا شاه نظری، نورا سام

توضیحات:

ویلاهای شماره یک و دو در دو زمین نزدیک به هم یکی به مساحت ۷۴۰ متر مربع و دیگری به مساحت ۱۴۰۰ متر مربع در خیابان گاز منطقه چلک طراحی شده‌اند. خواسته کارفرما داشتن یک امضا شخصی بود که ایده‌ای خاص وی باشد و در تمامی پروژه‌هایش وجود داشته باشد. با توجه به موضوع پروژه، گونه‌های سنتی خانه‌های ایرانی مورد بررسی قرار گرفتند، هم گونه درونگرا و هم برونگرا. در جفت گونه‌ها این فضاهای خالی بودند که رویدادهای خاطره‌انگیز رخ می‌داده است، چه در حیاط خانه‌های کویری باشد چه غلام گردش و تراس‌های خانه‌های شمالی. با شروع از دیاگرام اولیه برنامه، رابطه خطی بین فضاهای عمومی و خصوصی در پلان‌های مرسوم ویلا را به یک دیاگرام طیفی تغییر دادیم تا مرزها کم رنگ شده و سلسله مراتب فضا تغییر کند. در نتیجه، دیاگرام تغییر یافته، این امکان را داده است تا فضاهای بینابینی به همراه فضاهای نیمه عمومی و خصوصی در این پروژه تجربه شود. در ادامه دیاگرام مارپیچ در سطح افق به دیاگرام مارپیچ در راستای عمودی تبدیل شده است. نهایتاً در طرح اولیه به یک پوسته پیوسته رسیدیم که در آن کف، دیوار و سقف ماهیت یکپارچه دارند. در مراحل بعدی توسعه طرح، دیاگرام اصلی ماهیت کلی پروژه را به واسطه یک رمپ که ورودی را به بخش خصوصی مرتبط می‌کند، شکل می‌دهد.سازه پروژه سیستم دیوار برشی بتنی است و مصالح استفاده شده در آن نیز چوب و بتن است که موجب دیالوگ بین معماری مدرن و زمینه و همینطور ارتباط هرچه بیش‌تر دو پروژه با یکدیگر می‌شود.

معماران مرتبط: